Terreno para vender en MANACOR : 180m² 192.500 €
Referencia 37826
Resumen de este terreno para vender con 180 m²
Terreno
PB
180m²
Vacío
Descripción de este terreno para vender de 180 m²
SOLAR CON PROYECTO UNIFAMILIAR
Exclusiva oportunidad de inversión en Manacor: solar con proyecto de vivienda unifamiliar aprobado.
Se presenta una excelente oportunidad para promotores e inversores: solar urbano en el corazón de Manacor con proyecto de edificación ya aprobado y listo para desarrollar.
La propuesta contempla una moderna vivienda de varias plantas cuidadosamente diseñada para maximizar el espacio, la luz natural y la funcionalidad. El proyecto incluye:
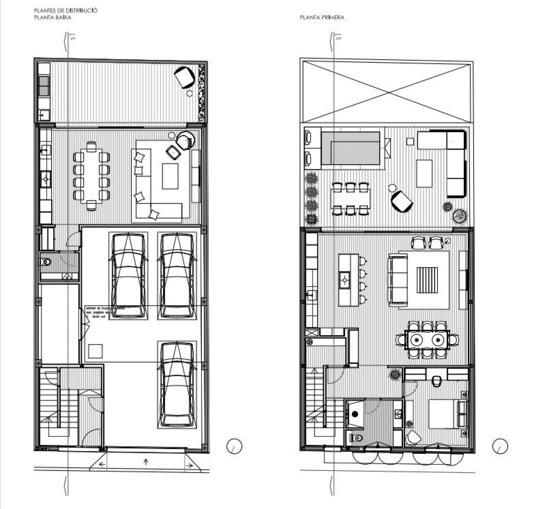
- Planta baja con amplio garaje con capacidad para varios vehículos, zona de acceso y espacios de almacenamiento.
- Primera planta destinada a zona de día, con gran salón-comedor, cocina abierta y acceso a terraza, ideal para crear un ambiente luminoso y acogedor.
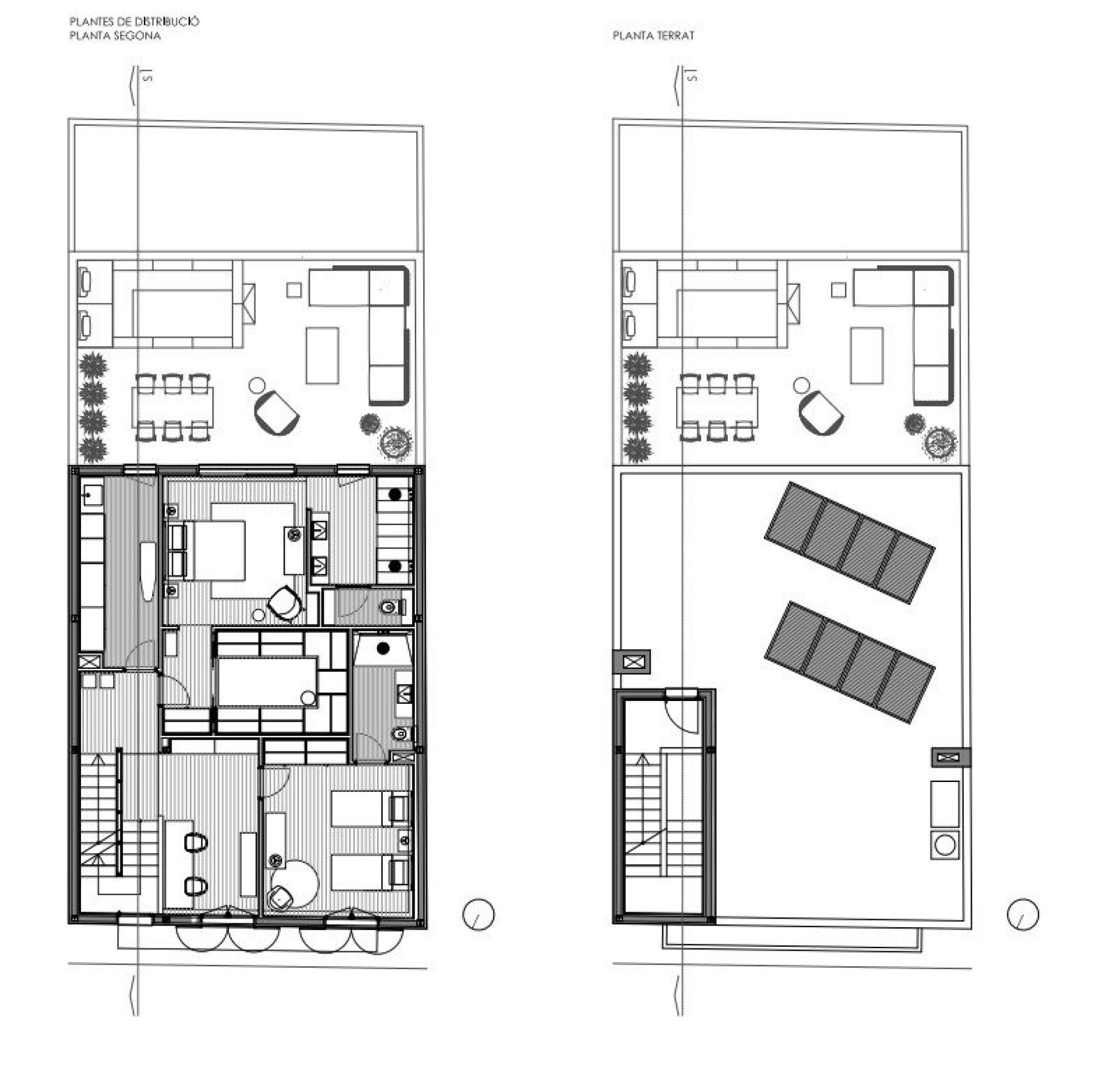
- Segunda planta con distribución de dormitorios, baños completos y espacios pensados para el confort familiar.
- Planta cubierta con azotea transitable, perfecta para zona chill-out, solárium o instalación de placas solares.
La edificación ha sido concebida con una estética contemporánea, líneas limpias y una distribución eficiente que combina comodidad y diseño.
Ubicado en una zona tranquila y bien comunicada de Manacor, este proyecto ofrece proximidad a todos los servicios: comercios, colegios, transporte y zonas de ocio.
Una oportunidad única de adquirir un solar con un proyecto ya validado, reduciendo tiempos y facilitando el inicio inmediato de la promoción.
Ideal tanto para inversión como para desarrollo de vivienda propia de alto nivel.
Para más información, planos detallados o visita, no dude en contactar con nosotros.
Se presenta una excelente oportunidad para promotores e inversores: solar urbano en el corazón de Manacor con proyecto de edificación ya aprobado y listo para desarrollar.
La propuesta contempla una moderna vivienda de varias plantas cuidadosamente diseñada para maximizar el espacio, la luz natural y la funcionalidad. El proyecto incluye:
- Planta baja con amplio garaje con capacidad para varios vehículos, zona de acceso y espacios de almacenamiento.
- Primera planta destinada a zona de día, con gran salón-comedor, cocina abierta y acceso a terraza, ideal para crear un ambiente luminoso y acogedor.
- Segunda planta con distribución de dormitorios, baños completos y espacios pensados para el confort familiar.
- Planta cubierta con azotea transitable, perfecta para zona chill-out, solárium o instalación de placas solares.
La edificación ha sido concebida con una estética contemporánea, líneas limpias y una distribución eficiente que combina comodidad y diseño.
Ubicado en una zona tranquila y bien comunicada de Manacor, este proyecto ofrece proximidad a todos los servicios: comercios, colegios, transporte y zonas de ocio.
Una oportunidad única de adquirir un solar con un proyecto ya validado, reduciendo tiempos y facilitando el inicio inmediato de la promoción.
Ideal tanto para inversión como para desarrollo de vivienda propia de alto nivel.
Para más información, planos detallados o visita, no dude en contactar con nosotros.
Esta propiedad está presentada por:

Joan Aguiló
Manacor (07500)
2 propiedades en cartera
¿Tienes un proyecto inmobiliario? ¿Quieres comprar o vender una casa, un apartamento, un terreno?
Experto en mi sector de actividad, apoyo a mis clientes para que sus proyec…
Me gustaría que se pusieran en contacto conmigo
¿Algún familiar quiere comprar?
Comparte la información conmigo a través de la aplicación SAFTI Connect y gana una media de 764€.
